- Viber/WhatsApp +886 918 135 070/ info@solar-bear.tw
- RU
- /
- 🌏
- RU
- /
- 🌏
Product Detail
ВОЛОЧИЛЬНЫЙ СТАН ДЛЯ ПРОВОЛОКИ ПОД ВЫСАДКУ БОЛТОВ, ГАЕК И ДЕТАЛЕЙ
- Item Number: 185141
- Product Category: ЛИНИИ ВОЛОЧЕНИЯ И ШЕВИНГОВАНИЯ ПРОВОЛОКИ
Описание
- Стан волочения проволоки в бунты (розетты) под холодную высадку с окончательным диаметром проволоки от 4,0 до 36,0 мм. Применяется для изготовления проволоки для автомобильного, машиностроительного и специального крепежа.
Full Description
Страна происхождения: Тайвань
Особенности
В состав волочильного стана для производства проволоки под высадку болтов, гаек и деталей входит: (1) волочильная инверторная машина вертикального типа с производительностью до 110 м/мин; (2) машина для предварительной подготовки проволоки для очистки катанки от ржавчины и грязи; (3) заточная машина для проволоки. (4) инструментарий для деформирования проволоки. Диаметр обрабатываемой проволоки предварительно определяется клиентом и согласовывается с поставщиком. Один комплект оснастки может работать только с близкими диаметрами, например, 6мм и 7мм или 7мм и 8мм. Волочильное оборудование поставляется с одним комплектом оснастки в стандартном варианте.
Волочильный стан модели IVD спроектирован для вторичной обработки металлической проволоки. Данный стан имеет функции как волочения, так и намотки. проволока подвергается волочению и сматывается на тележку. Волочильный стан IVD прост в эксплуатации, экономичен в отношении трудозатрат и времени, эффективен.
Оборудование для волочения проволоки. Модель IVD покрывает широкий спектр проволоки для производства крепежа, медной проволоки, а также различных видов стальной проволоки. Помимо волочения и намоточной функции IVD также применим для поверхностной обработки проволоки.
Характеристики
Комплектация волочильного стана для проволоки под высадку болтов, гаек и деталей
| Оборудование для волочения проволоки | Количество, ед |
| Гидравлический размотчик проволоки вертикального типа | 1 комплект |
| Оборудование для шевингования поверхности проволоки | 1 комплект |
| Волочильный стан инверторный вертикального исполнения с одним волочильным барабаном | 1 комплект |
Гидравлический размотчик проволоки вертикального типа
Обеспечивает процесс подачи проволоки – правление проволоки. Диаметр на входе: Ø32.0 мм – Ø20.0 мм. Материал: низкоуглеродистая сталь / легированная сталь. Двигатель & привод: 30 л.с. двигатель переменного тока, марки ТЕСО. 30 л.с. привод, марки Rhymebus. Рихтовочное устройство с гидравлической системой. Узел правления оснащен правильными валками х 1 комплект. Правильные валки контролируются гидравлической системой. Оборудование останавливается автоматически при образовании петель. Функция аварийной остановки. Размотчик оснащен шкафом электрического управления.
Оборудование для шевингования поверхности проволоки
Диаметр проволоки на входе: до Ø32.0 мм. Материал: низкоуглеродистая сталь / легированная сталь. Двигатель: 5 л.с. Движение оборудования внутрь/наружу обеспечивается гидравлической системой. Зачистной механизм оснащен ножом х 3 комплекта, настраиваемый. Механизм шевингования выходит наружу после завершения процесса шевингования. Опора стеллажного типа включает валки х 1 комплект. Поверхность валков прошла предварительное термоупрочнение. Оборудование для шевингования может быть скомбинировано и синхронизировано для работы в линии в волочильным станом.
Волочильный стан инверторный вертикального исполнения с одним волочильным барабаном
Исходный материал - низкоуглеродистая сталь & легированная сталь. Диаметр проволоки на входе: Ø22.0 мм – Ø32 мм. Главный двигатель переменного тока мощностью 200 л.с., марки TECO. Поворотный двигатель мощностью 5 л.с. размотчика проволоки, марки TECO. Двигатель переменного тока с редуктором для перемещения механизированного размотчика проволоки мощностью ½ л.с. Привод с инвертором главного двигателя, марки Rehymebus мощностью 200 л.с. Привод с инвертором поворотного двигателя размотчика проволоки марки Rehymebus мощностью 5 л.с. Коробка передач зубчатого типа вместо червячной передачи, зубчатая коробка передач отличается повышенной эффективностью. Скорость волочения: в зависимости от диаметра проволоки 0-40 М/мин (50 Гц); 0-50 М/мин (65 Гц) MAX.
Узел волочения
Диаметр кабестана: 1200 мм. Высота кабестана: 260 мм. Материал: легированный чугун. Покрытие: карбид вольфрама. Твердость поверхности: 62 HRC. Поверхность зеркально отполирована для предупреждения повреждения поверхности проволоки. Направление волочения стандартное справа налево. Водяное охлаждение кабестана и волокодержателей. Волокодержатель неподвижного типа. Размер волоки требует дополнительного согласования. Стандартное оборудование подходит для одиночных волок, размером JIS W113 (Ø195x80), JIS W112 (Ø175x70), JIS W111 (Ø145x60) и JIS W110 (Ø125x50). Доступна функция настройки волокодержателя: вверх/вниз & влево/вправо. Волочильный стан включает рихтовочный узел перед матрицедержателем.
Панель управления
Скорость механизированного размотчика проволоки контролируется независимо и может быть синхронизирована со скоростью волочильного стана. Оснащен весовым механизмом, который останавливает оборудование автоматически при завершении программы волочении необходимого объема проволоки. Две ступени торможения и остановки при завершении программы волочении необходимого объема проволоки. Стан останавливается автоматически в случае отсутствия заготовки или открытой защитной двери. Панель управления с сенсорным дисплеем Siemens, размером 7”. Дисплей HMI отображает скорость, напряжение, коэффициент обжатия, состояние кабестана и индикацию событий. Волочильный стан оборудован 6-ю прижимными роликами (2 ед. в комплекте х 3 комплекта) вокруг кабестана, приводятся в действие гидравлической системой. Каждая единица стенда для продукции имеет грузоподъемность 1100-1500 кг. Стан включает две единицы стенда для проволоки. Стан оборудован рихтовочным устройством перед матрицедержателем.
Спецификация
| Модель | Диаметр проволоки на входе, мм | Диаметр кабестана, мм | Производительность, М/мин. | Мощность двигателя, л.с. |
| IVD-400 | < 4.0 | 400 | 0-100 | 10-20 |
| IVD-600 | 8.0-4.0 | 600 | 0-160 | 50-60 |
| IVD-800 | 15.0-6.0 | 800 | 0-102 | 50-100 |
| IVD-1000 | 22.0-10.0 | 800-1000 | 0-80 | 75-125 |
| IVD-1200 | 33.0-20.0 | 1200 | 0-45 | 100-150 |
| IVD-1300 | 36.0-20.0 | 1300 | 0-45 | 100-150 |
Технология
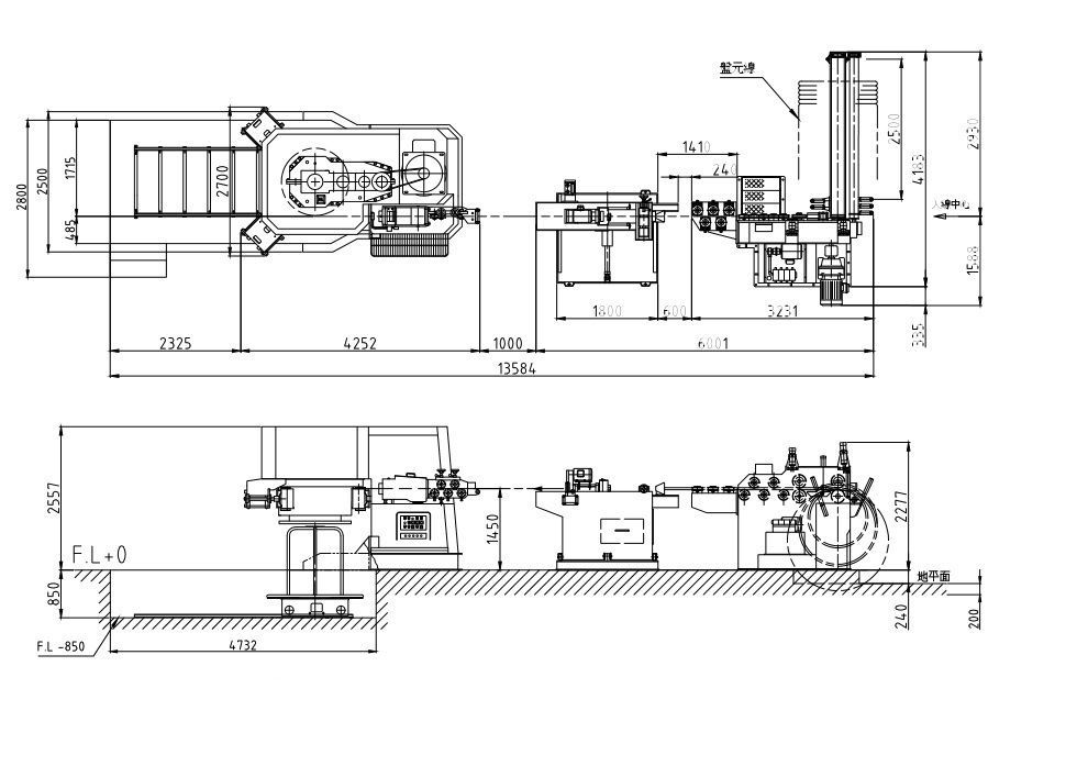
Волочильный стан для проволоки под высадку болтов, гаек и деталей
КОМПЛЕКТУЮЩИЕ КАТЕГОРИИ
ВОЛОЧИЛЬНЫЕ ФИЛЬЕРЫ (ВОЛОКИ)
МЕХАНИЧЕСКИЙ ОКАЛИНОЛОМАТЕЛЬ
УСТАНОВКА ДЛЯ ТОНКОЙ ОЧИСТКИ СТАЛЬНЫМИ ЩЁТКАМИ
УСТАНОВКА ДЛЯ НАНЕСЕНИЯ ПОДСМАЗОЧНОГО СЛОЯ
ЛЕНТОЧНАЯ ШЛИФОВАЛЬНАЯ МАШИНА
ПЕСКОСТРУЙНЫЙ ОКАЛИНОЛОМАТЕЛЬ
ЛИНИЯ ТРАВЛЕНИЯ И ФОСФАТИРОВАНИЯ ПРОВОЛОКИ
СТАН ДЛЯ ПРОИЗВОДСТВА ГОРЯЧЕКАТАННОГО ПРОКАТА
СТАНЦИЯ ВОССТАНОВЛЕНИЯ ПОДСМАЗОЧНОГО ПОРОШКА
УСТРОЙСТВО ДЛЯ НЕПРЕРЫВНОГО СЪЁМА ПРОВОЛОКИ
УСТРОЙСТВО ДЛЯ НАМОТКИ ПРОВОЛОКИ В РОЗЕТТУ
ДЕТЕКТОР ТЕМПЕРАТУРЫ И ПАРАМЕТРОВ ПРОВОЛОКИ
Видео-презентация оборудования, инструмента и оснастки из Тайваня
Волочильный стан для проволоки под высадку болтов, гаек и деталей
Модель IVD-1200
Референтное оборудование для производства калиброванной проволоки под высадку болтов, гаек и деталей
Other Descriptions
- СВЯЖИТЕСЬ С НАМИ
info@solar-bear.tw - Карта сайта
Тайвань, г. Тайбэй, тел. +886-918-135-070, эл. почта: info@solar-bear.tw
Станки, метизное оборудование, инструмент из Тайваня для производства крепежа и калиброванного металлопроката.
.jpg&Width=347)
.jpg&Width=347)
.jpg&Width=347)
.jpg&Width=347)